Lupapiirustukset
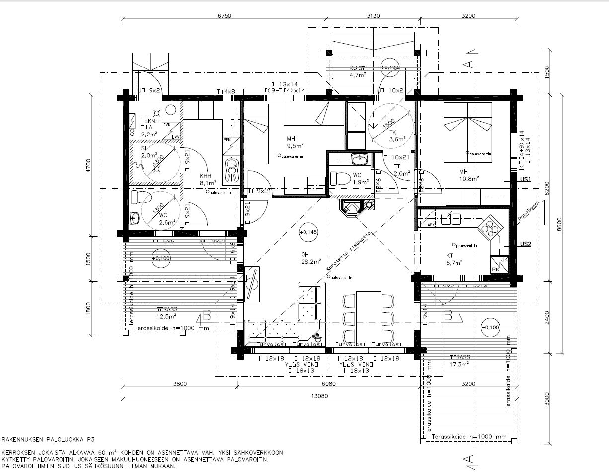
| Pohjapiirustus |
| Julkisivupiirustukset |
| Leikkaus A-A |
Talviasuttava hirsimökki Puutikkalassa, Pälkäneellä, Kukkia-järven rannalla.
Kerroksia: 1
Rakennusala: 90 m²
Tilavuus: 330 m³
Ulkoseinä: lamellihirsi 202x220, kuusi
Katto: tiili, kaltevuus 1:2 (27°), 55cm eriste
Alapohja: maanvarainen, 20cm EPS eriste
Lattiat: parketti, laatta
Ikkunat: Piklas
Ulko-ovet: Piklas
Sisäseinät: hirsipaneeli 20x220 kuusi
Lämmitys: lattialämmitys sähköllä, ilmalämpöpumppu, aurinkokennot 8 kpl
Ilmanvaihto: Lämmön talteenottava Vallox 096 MV L
Jäteveden käsittely:
- WC: Wavin-Labco Loka 5400
- harmaat vedet: Wavin-Labco BioRami 500
Vesi: porakaivo, uppopumppu Grundfos SP 2A-23 3-vaihe , kalvopainesäiliö 50l, lämminvesivaraaja Jäspi VLM 160S

Ei kommentteja:
Lähetä kommentti